house talk
건축문의 1588-9704

품질 1위, 하우스톡 직영공사 현장을 자신있게 보여드립니다.

경남 진주시 안전리

Summary

연 면 적

224.48m²(67.91평)

1 층 면 적

110.8m²(33.52평)

2 층 면 적

74.72m²(22.60평)

포 치 면 적

38.96m²(11.79평)

건 축 구 조

경량목구조

외 장 재

치장벽돌, 세라믹사이딩, 칼라강판

지 붕 재

평기와

창 호 재

독일식 시스템 창호

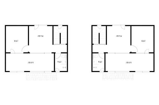
Floor Plan

Daily Progress

58%

01

기초

02

골조

03

창호벤트

04

전기

05

설비

06

방수

07

단열

08

석고내장

09

인테리어

10

외장

11

지붕

12

기타

13

완공

01. 기초공사

2026.2.23

2025.2.27

02. 골조공사

2025.3.5

03. 창호/벤트

2025.3.17

04. 전기공사

05. 설비공사

2025.3.25

06. 방수공사

2026.3.23

07. 단열공사

2026.4.1

08. 석고/내장

09. 인테리어

10. 외장공사

2025.3.20

11. 지붕공사

2025.3.24

12. 기타공사

13. 준공청소/완공