house talk
건축문의 1588-9704

합리적으로 지은 여섯 식구 집

충남 서산시 예천동

Concept

화려하고 웅장한 집보다는 깔끔하고 모던한 스타일을 선호하는 건축주의 취향에 맞춰 설계된 치장벽돌 주택입니다. 처마를 길게 내어 해가 높이 뜨는 여름에는 그늘을 만들고, 낮게 뜨는 겨울에는 집 안까지 해가 들도록 하면서 서산 주택만의 개성있는 외관을 완성했습니다.

Summary

연 면 적

193.12m²(58.42평)

1 층 면 적

113.28m²(34.27평)

2 층 면 적

79.84m²(24.15평)

건 축 구 조

경량목구조

외 장 재

치장벽돌

지 붕 재

칼라강판

내 장 재

실크벽지, 강마루(광폭형), 화이트오크(계단재)

창 호 재

독일식 시스템 창호

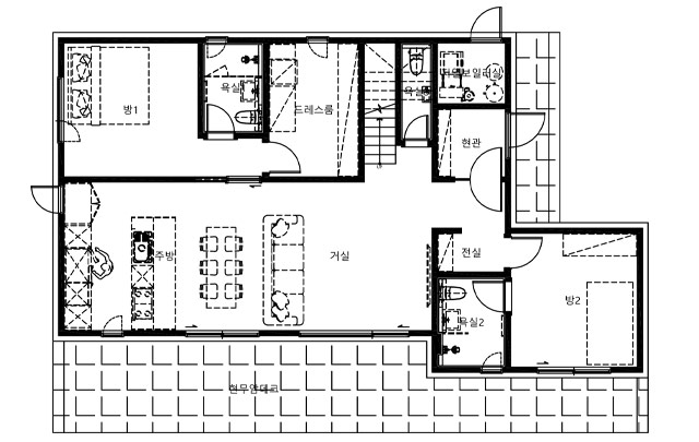
Floor Plan

https://housetalk24.mycafe24.com/image/image_design_drawing_image_1/design_drawing_image_1_1763973180.jpg

Exterior

Interior

충남 서산시 예천동

이 주택으로 상담하기

*개인정보 수집 및 이용에 대한 동의